Broager 22, 6760 Ribe - Billed

Kontakt os

Bestil fremvisning

Bestil salgsmateriale

Broager 22, Ø Vedsted

Unik og indbydende familievilla med udsigt til åbne marker!

På en stille, lukket vej i Øster Vedsted finder I et hjem, der skiller sig markant ud fra mængden. Her står en velbygget og fuldmuret villa, hvor både materialevalg og udtryk er gennemtænkt til mindste detalje. Det røde tegltag er skiftet omkring 2010, og hele huset prydes af moderne træ/alu-vinduer, der giver boligen et tidløst og elegant look.

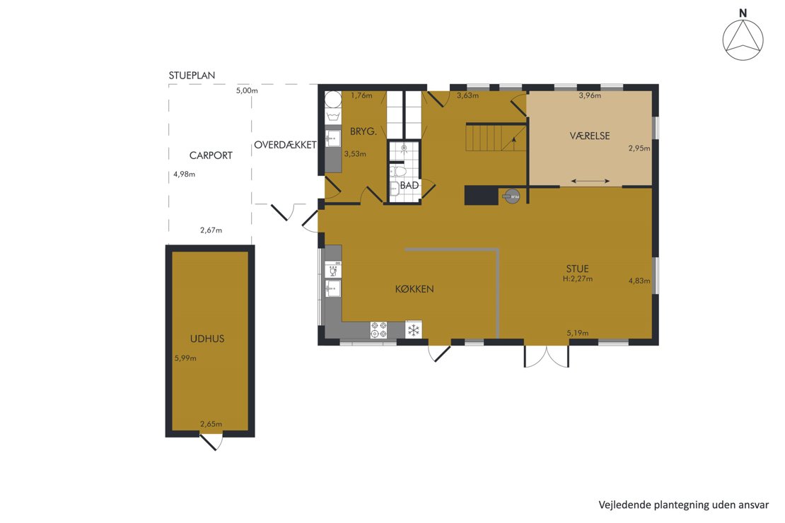
Når I parkerer i carporten, kan I gå tørskoet ind gennem bryggerset – en praktisk detalje i en travl hverdag. Udenfor venter en sydvendt terrasse, hvor solen følger jer hele dagen, og hvor udsigten over de vidtstrakte marker skaber den perfekte ramme om både morgenkaffen og aftensmåltidet. På grunden finder I også en hyggelig pavillon, et isoleret redskabsrum og et velindrettet værksted. Haven er nem at holde og omsluttet af diskret indhegning.

Indenfor fortsætter de gode takter. Bryggerset er funktionelt med masser af opbevaring og plads til vaskemaskine og tørretumbler. Herfra træder I ind i et lyst og luftigt køkken-alrum, hvor udsigten kan nydes gennem de store vinduespartier, mens brændeovnen spreder varme og atmosfære.

Stuen ligger i direkte forlængelse af alrummet og giver god plads til både afslapning og gæster. Herfra er der udgang til terrassen, så indendørs og udendørs liv smelter naturligt sammen. I denne del af huset finder I også et ekstra værelse, der oplagt kan bruges som kontor, hobbyrum eller privat voksenafdeling.

Entréen fungerer som bindeled til et smagfuldt badeværelse fra 2017 og trappen til førstesalen. Heroppe åbner en stor møblerbar repos – et oplagt fællesrum til leg, gaming eller hjemmearbejde. Etagen rummer tre gode værelser, samt et rummeligt badeværelse i lyse materialer.

Øster Vedsted er kendt for sit gode fællesskab og naturskønne omgivelser. Her bor I tæt på Ribe, hvor domkirkens spir kan ses i horisonten, og kun få minutter fra Nationalpark Vadehavet. Børnene kan cykle sikkert til skole ad sti hele vejen – en af grundene til, at området er så populært blandt familier.

Kort sagt: Et hjem med karakter, komfort og en beliggenhed, der taler for sig selv.

Book en fremvisning i dag på 92 92 67 60– vi glæder os til at vise jer huset!

LIGNENDE BOLIGER

KONTAKT OS PÅ

9292 6760info@ribemaeglerne.dk